
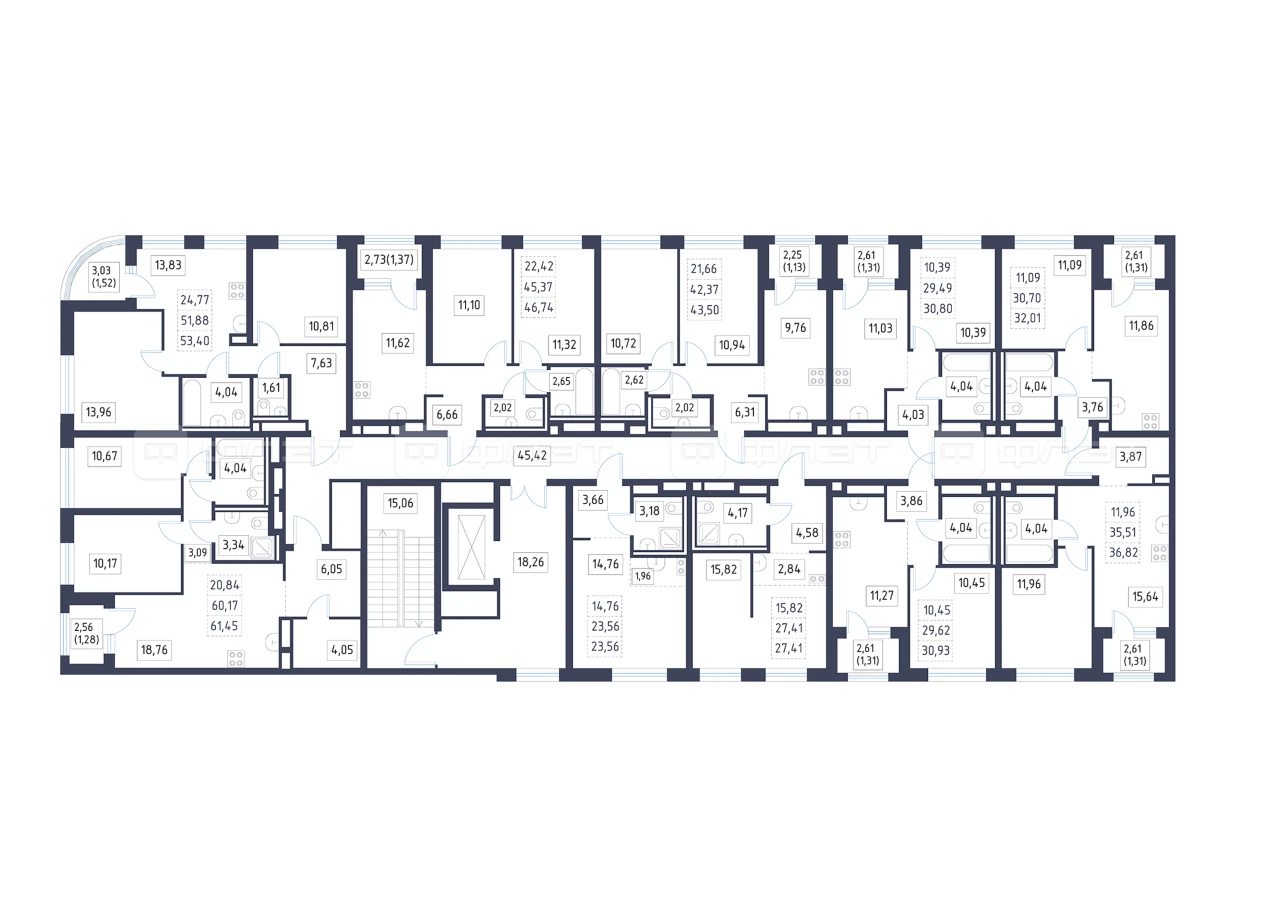
2-комнатная квартира, №201
Респ Татарстан, г Казань, ул Завокзальная, УБ-2, Кировский
- 61.45/20.84/18.76 м²
- 5/8 этаж
- Квартира
- Глоракс Экосити
- GloraX (Глоракс)
- Комфорт
- 1 кв. 2027г.
- Монолит-кирпич
- 2.72 м
- 10
- 2
- 2.56 м²
- 4.04 м²
- 3.34 м²
14 905 881 ₽

Респ Татарстан, г Казань, ул Завокзальная, УБ-2, Кировский